Þessa dagana eru framkvæmdir við nýtt bæjarhlið við Nesveg að hefjast. Í fyrrasumar var reist hlið við Eiðisgranda sem vakti mikla athygli og ánægju íbúa Seltjarnarness.
Þessa dagana eru framkvæmdir við nýtt bæjarhlið við Nesveg að hefjast. Í fyrrasumar var reist hlið við Eiðisgranda sem vakti mikla athygli og ánægju íbúa Seltjarnarness.
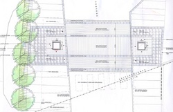
Með nýju bæjarhliði verður aðkoman að Seltjarnar-nesi frá Nesvegi mun fallegri og
snyrtilegri auk þess sem bæjarmörk verða skarpari. Bæjar-hliðið verður mun minna um sig en Eiðisgrandahliðið enda var við hönnun þess tekið mið af umhverfinu við Nesveg sem ekki býður upp á stórt mannvirki.
Stefnt er að því að ljúka framkvæmdum við hliðið fyrri hluta sumars.
